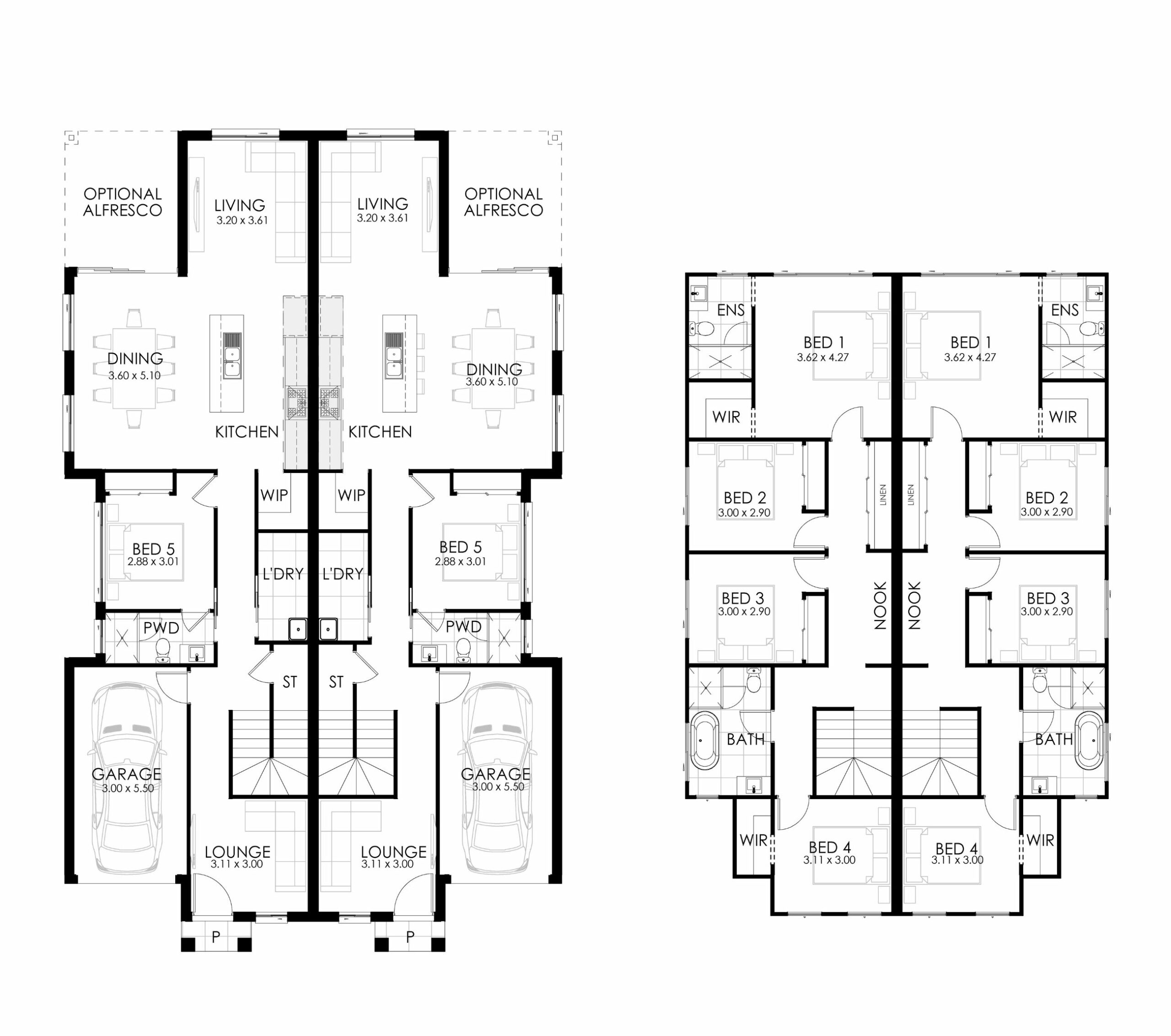
Introducing the functional Dover duplex – a new King Homes design that offers comfortable living for families of all sizes. With its double storey layout and stylish facade, this home design is sure to impress.
As you enter the home, you are greeted by a spacious living room at the front, which provides a perfect space for relaxation and entertainment. The ground floor also boasts a 5th bedroom, offering versatility for extended families or guests.
The rear of the home features a light-filled open plan living, dining, and kitchen area, providing the perfect space for family gatherings and entertaining guests. The sleek and modern kitchen is equipped with high-quality appliances and ample storage space, making it a chef’s delight.
Upstairs, you will find four generously sized bedrooms, including the main bedroom with a walk-in robe and ensuite, providing the ultimate private sanctuary. There is also a study nook, perfect for working from home or providing a designated space for children to study.


















