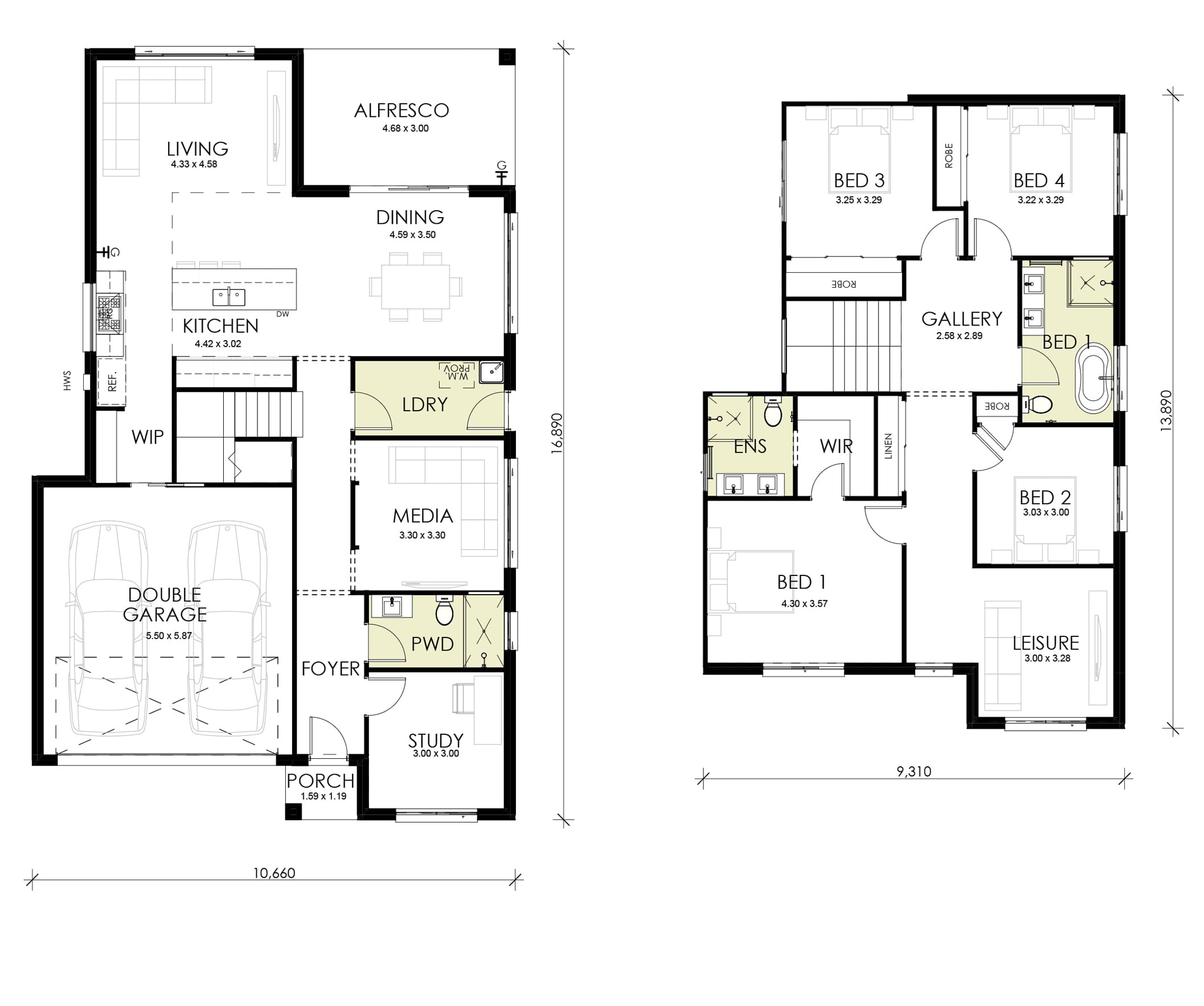
As you will find, we have many collections of home designs to choose from. Our home designs are flexible to be customised to suit your block of land, and here is how our Oxford 29 works incredibly well in most new land estates as we share the design being built on a 419sqm block in the beautiful suburb of Gledswood Hills, resulting in a contemporary family home.

Our Oxford design, a contemporary double-storey home, is a popular choice among our clients and the 30 square option is proudly on display at HomeWorld Leppington. Known for its modern façade and thoughtfully designed layout, the Oxford provides space and modern conveniences for contemporary family living.

Tailored to fit new blocks of land
At King Homes NSW, we pride ourselves on creating versatile and contemporary home designs that cater to the unique needs of our clients. One of our standout designs, the Oxford 29, has recently been adapted to fit a 419sqm block in the picturesque Gledswood Hills, resulting in a modern family home that perfectly utilises the available space.
When tasked with building a 5-bedroom double storey home with a pool on a 419sqm block, our team at King Homes NSW knew the Oxford 29 would perfectly fit the land and the client’s preferences with minimal modifications.
1. Converting the Study to a Fifth Bedroom:
One of the key features of the Oxford 29 is the Study downstairs which can easily turn into a 5th bedroom. The 5th bedrooms adds significant value to the home, providing a comfortable and private space for guests or extended family members. The bedroom is spacious and well-appointed, ensuring a restful retreat for anyone who stays.
2. Creating an Open Home Office:
Understanding the growing need for flexible working spaces, instead of another t.v. area, we transformed the upstairs open-plan living area into a functional and stylish home office. This space allows for productivity and focus while maintaining a connection to the rest of the home. The open layout ensures plenty of natural light and a sense of openness, creating an ideal environment for work or study.

3. Enhancing Outdoor Living:
The Oxford design includes a generous alfresco area and we added a beautifully designed King pool to create the ultimate backyard. These features extend the living space outdoors, perfect for entertaining family and friends or enjoying a quiet afternoon by the pool. Additionally, there is grassed area for the kids to play, ensuring the backyard is both functional and enjoyable.

The Result: A Contemporary Family Home
The Oxford 29 offers contemporary family home that balances style, comfort, and functionality. We invite you to visit our display homes at HomeWorld Leppington to experience the Oxford design first-hand which is showcased with our quality inclusions and only a handful of upgrade finishes throughout.