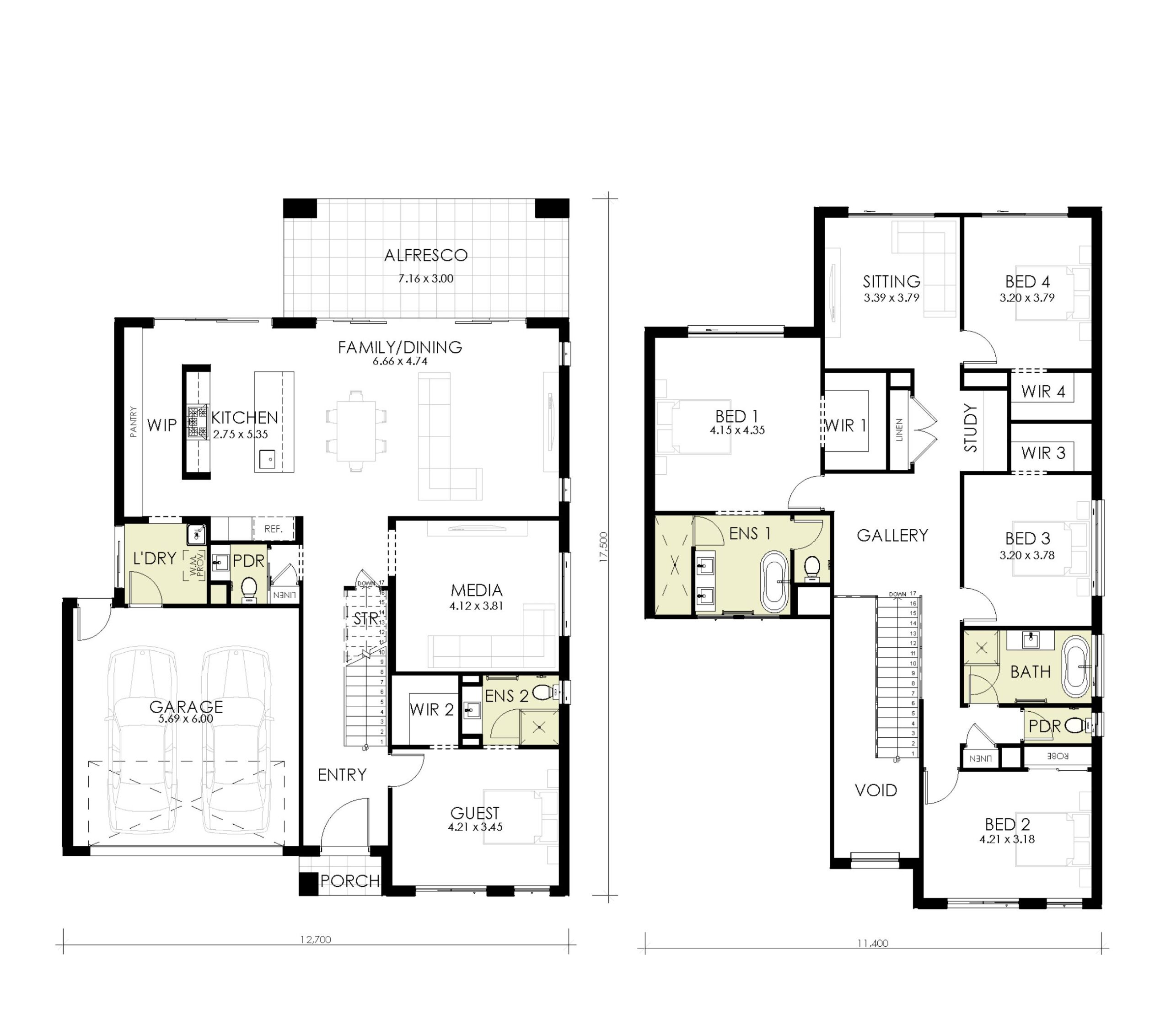
Introducing the Ascot, a versatile and popular double-storey home by King Homes NSW. Available in five different designs, the Ascot can be configured as either a four or five-bedroom home, perfectly suiting the diverse needs of modern families. Currently on display at HomeWorld Box Hill, the Ascot exemplifies functionality and efficient use of space.
Why You’ll Love the Ascot:
Flexible Bedroom Options: The Ascot can be customised to feature either four or five spacious bedrooms, providing flexibility to meet your family’s needs. The main suite includes a walk-in robe and a luxurious ensuite, creating a private retreat for parents. An additional guest bedroom with an ensuite is located on the ground floor, offering privacy and comfort for visitors.
Versatile Living Areas: Designed with multiple living spaces, the Ascot includes a large open-plan family and dining area, a separate media room, a sitting room, and a study. These areas are perfect for entertaining, relaxing, and productive activities, catering to the varied needs of a modern family.
Modern Kitchen: The contemporary kitchen is equipped with a walk-in pantry, making meal preparation enjoyable and efficient. Its central location ensures easy access to the dining and living areas, ideal for both everyday living and entertaining guests.
Functional Design: The layout of the Ascot maximises space and practicality. The laundry room and linen closet are conveniently located close to the kitchen and living areas, enhancing functionality. The inclusion of a walk-in pantry and multiple storage spaces provides ample storage and preparation areas. The upper floor features a gallery and void area, adding a touch of sophistication to the home.
Outdoor Enjoyment: The spacious alfresco area extends the living space outdoors, providing a perfect spot for dining, entertaining, or simply enjoying the fresh air. Additionally, a balcony on the upper floor adds an extra element of outdoor living.























