Introducing the Ascot Dual – A Perfectly Designed Double-Storey Home with a Separate Attached Granny Flat. Ideal for multi-generational living, the Ascot Dual combines the spaciousness of a modern family home with the convenience of a private granny flat, offering flexibility and independence for extended families or additional rental income.
Why you’ll love the Ascot Dual:
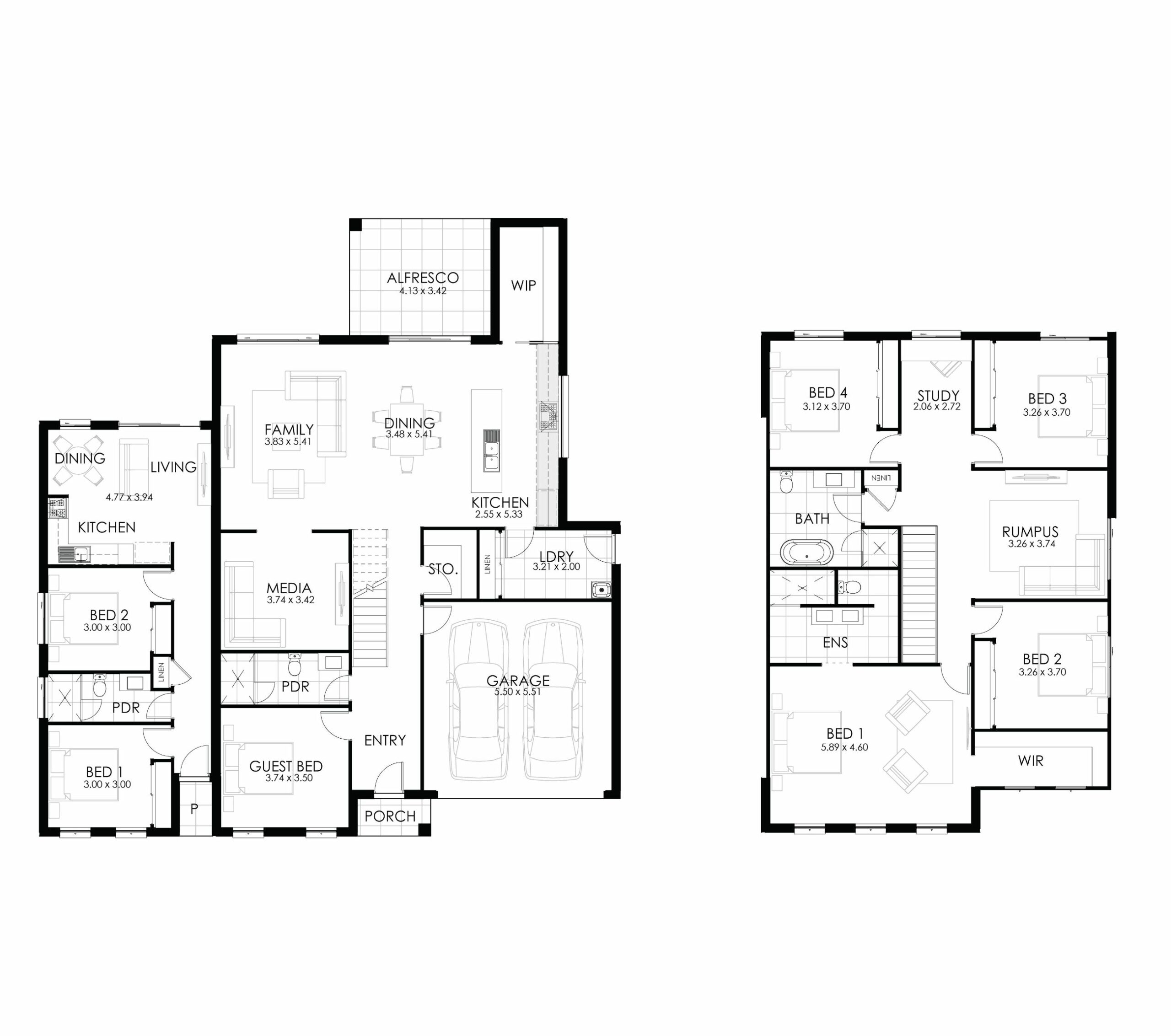
Main Residence
Spacious Bedrooms: The main home includes four generously sized bedrooms upstairs, all thoughtfully designed to provide comfort and privacy. The master suite boasts a luxurious ensuite and an expansive walk-in robe, creating a serene retreat for parents. The additional bedrooms feature built-in robes, and there’s even a separate study, perfect for working from home or studying.
Multiple Living Areas: With a family, dining, and media room on the ground floor, plus a rumpus room upstairs, the Ascot Dual offers abundant space for family gatherings, entertainment, and relaxation. The open-plan living and dining area seamlessly flows into the alfresco, making it ideal for indoor-outdoor living.
Practical Features: The Ascot Dual includes a double garage with internal access, a large kitchen with a walk-in pantry, and a convenient laundry with external access. The smart layout ensures storage solutions are plentiful throughout the home.
Granny Flat:
The attached granny flat offers a fully self-contained living space, featuring two comfortable bedrooms, a kitchen, a living and dining area, and a private bathroom. This layout ensures independence for extended family members, elderly parents, or even as a rental opportunity, while still being connected to the main residence.
Outdoor Living: The alfresco area provides a perfect space for outdoor entertaining or quiet family meals, enhancing the home’s seamless flow between indoor and outdoor living.











