Introducing the Pacific, part of our contemporary double-storey collection by King Homes NSW. Available in 32 and 36 squares, this modern family home has been meticulously designed to meet the needs of growing families and will be on display at HomeWorld Oran Park in 2025.
Why you’ll love the Pacific:
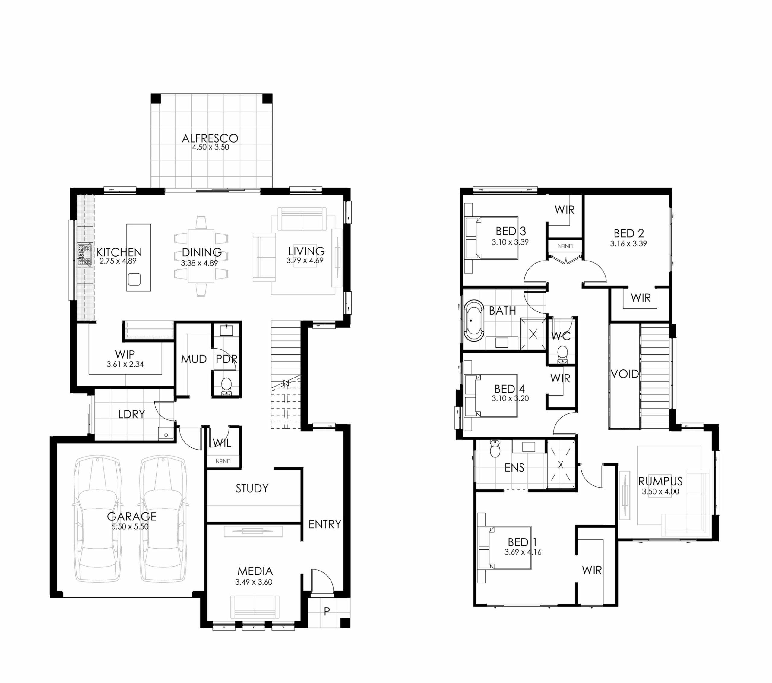
Spacious Bedrooms: With four generously sized bedrooms, the Pacific ensures every family member has their own comfortable space. The main suite on the upper floor features a luxurious ensuite and an expansive walk-in robe, offering a private haven for parents. The additional bedrooms also include walk-in robes, providing ample storage and convenience for children and guests alike.
Versatile Living Spaces: The Pacific offers multiple living areas to cater to every lifestyle. The open-plan living and dining area downstairs flows seamlessly into the alfresco, perfect for indoor-outdoor entertaining. Upstairs, the rumpus room creates a dedicated space for relaxation or play, while the media room downstairs is ideal for family movie nights or a private retreat.
Dedicated Study: Designed with modern families in mind, the Pacific includes a study on the ground floor, perfect for those who work from home or need a quiet space for focused work or study.
Well-Appointed Kitchen: The contemporary kitchen is a highlight of the Pacific, featuring a walk-in pantry with ample storage and a spacious island bench that doubles as a casual dining area, perfect for family meals and social gatherings.














