Explore the Westwood Series – Designed for Flexibility and Family Living. Whether you need a compact home for a narrow lot or a spacious family retreat, the Westwood series offers a variety of sizes and features to suit your lifestyle. Available in 23 to 37 square options, the Westwood is crafted with versatility in mind.
Why you’ll love the Westwood:
23 Square – 4 Bedrooms: Ideal for narrow lots, this 23 square option offers a smart layout with four bedrooms, a large walk-in pantry, and a single garage. Perfect for families looking to maximize space without compromising on style.
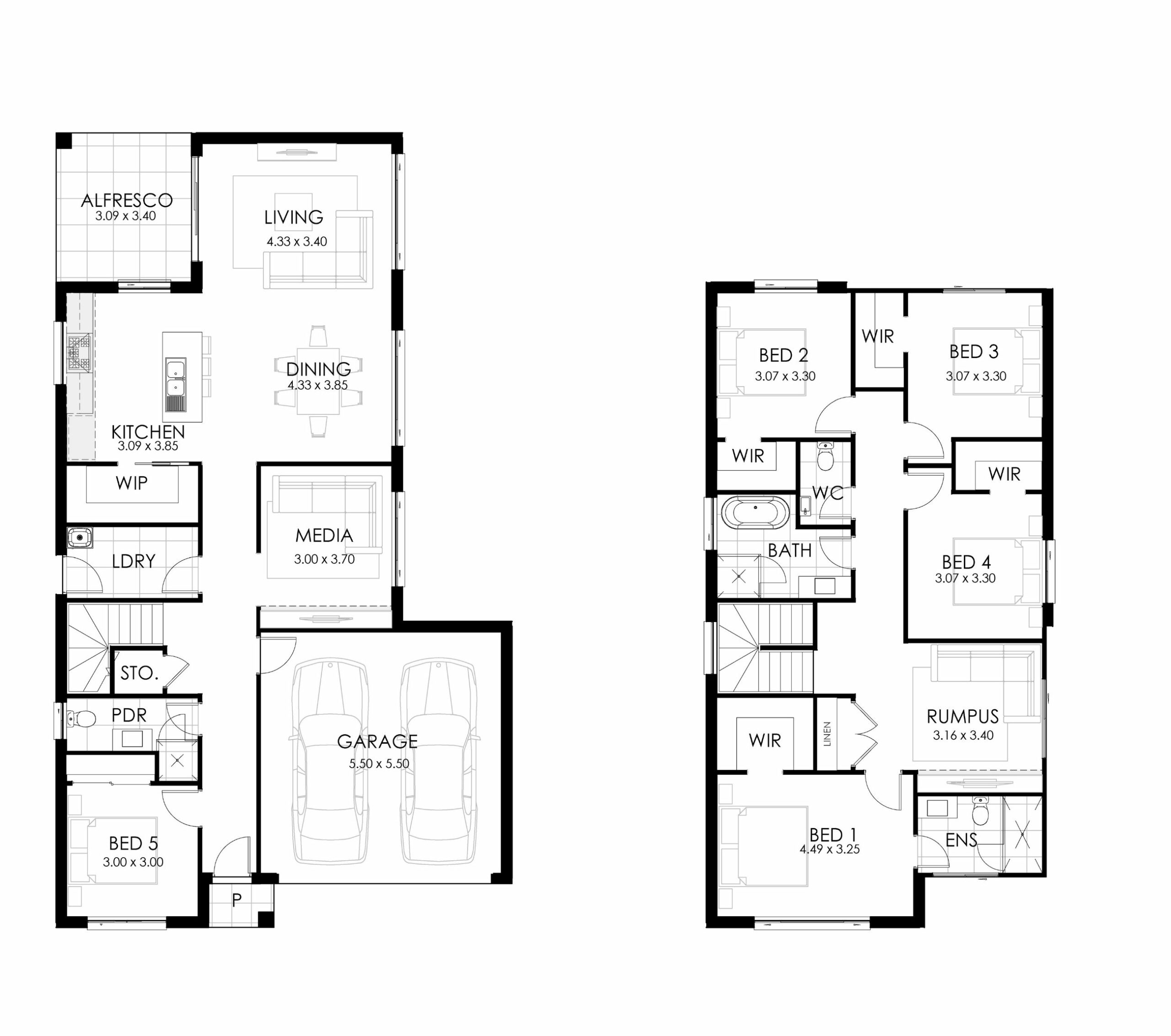
28 Square – 5 Bedrooms: This design includes five spacious bedrooms, with walk-in robes in every room. A practical choice for growing families needing extra storage and comfort.
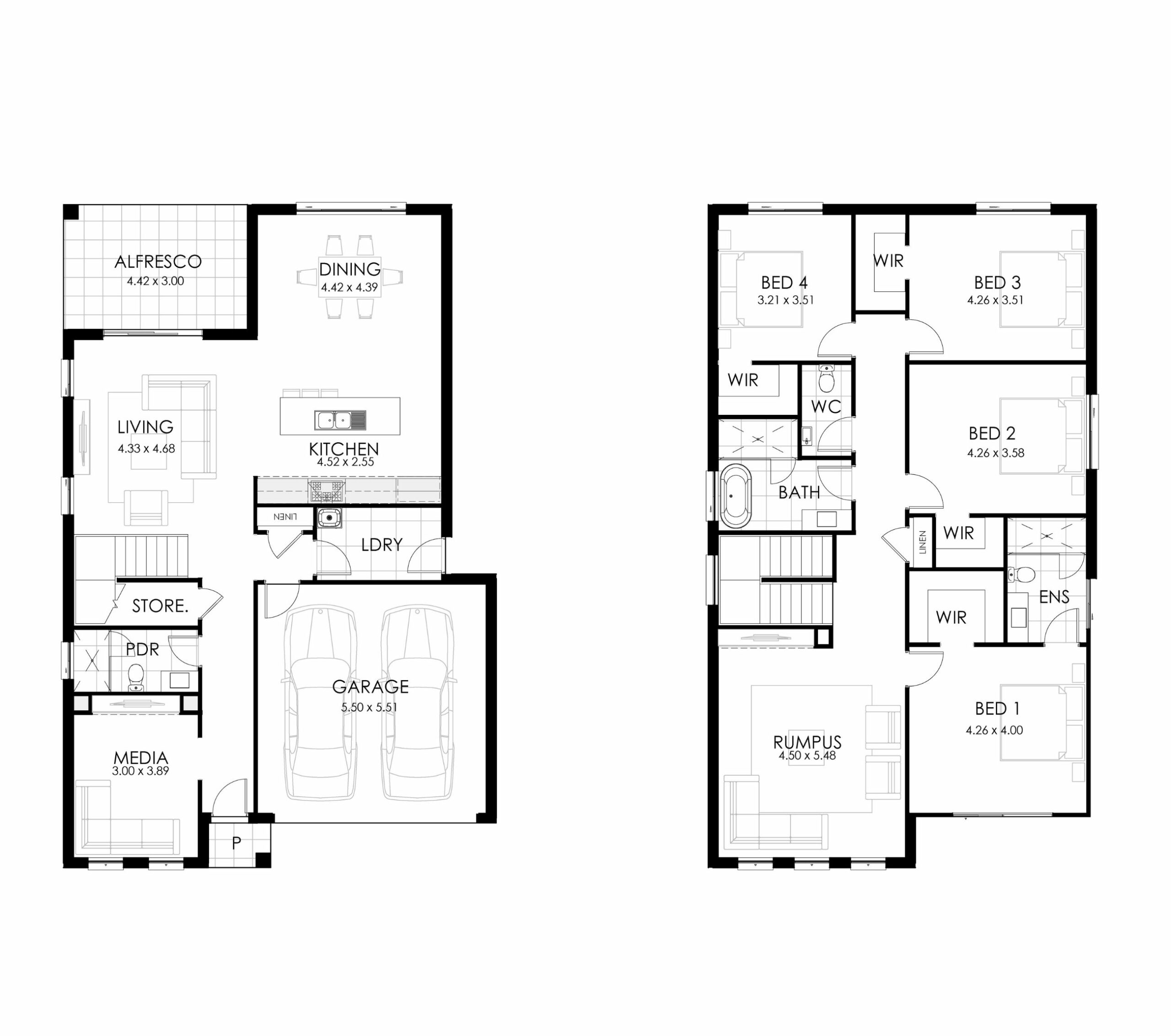
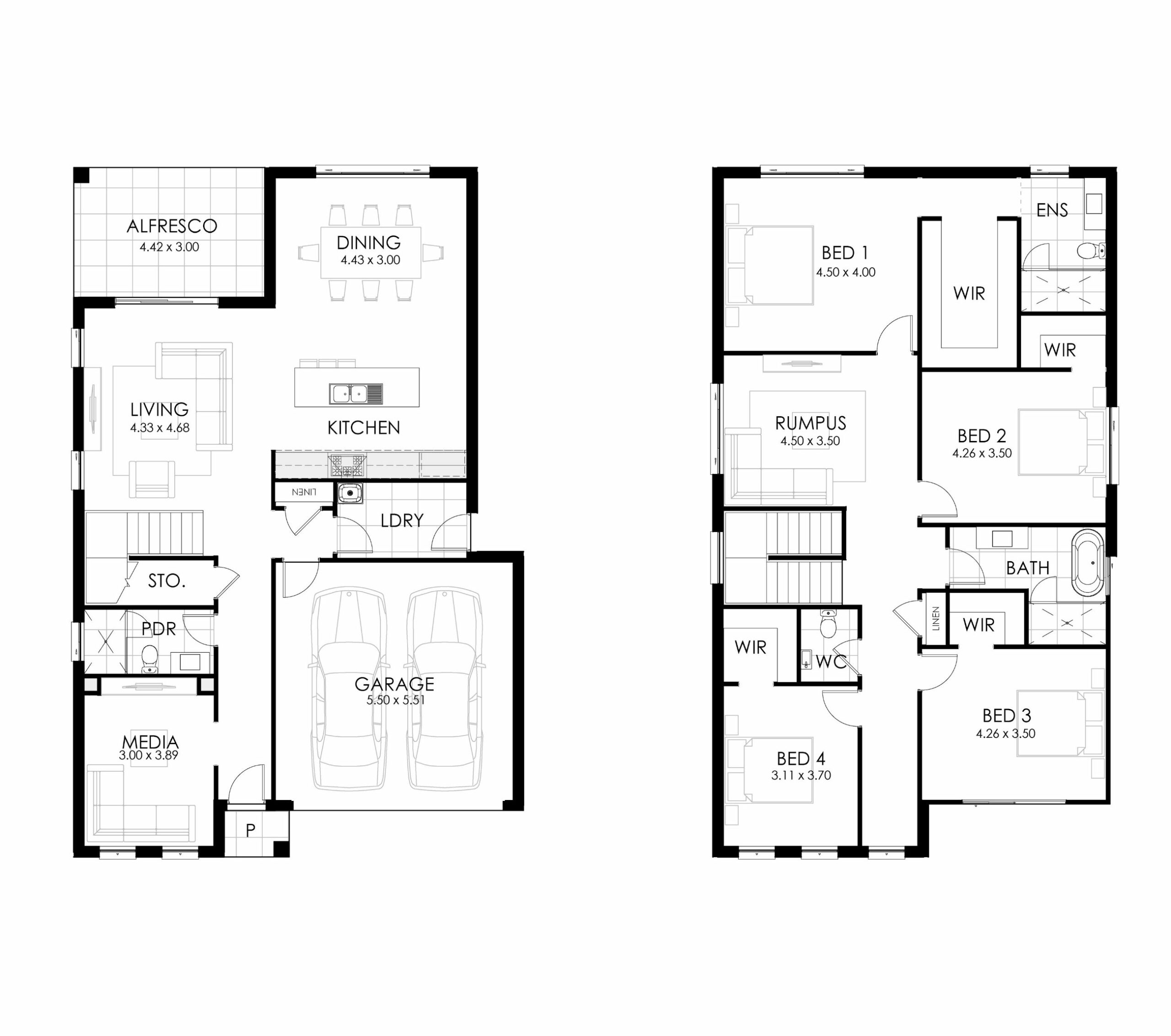
32 Square – Main Bedroom Flexibility: Choose between having the main bedroom at the front or rear of the home, offering more flexibility in design. Perfect for families who want to personalize their living space.
34 Square – 5 Bedrooms with Mudroom: This design is perfect for busy families. Featuring five bedrooms, including a guest bedroom on the ground floor, and walk-in robes in all bedrooms, it also includes a practical mudroom for added convenience.
37 Square – Spacious Living with Two Studies: The largest option in the Westwood series, this 37 square design features four generous bedrooms, two study spaces, and a mudroom. It’s perfect for families who need room to grow, work, and play.



















