Introducing the Hamilton duplex design by King Homes NSW, a fusion of modern flair, and practicality to suit Sydney blocks of land.
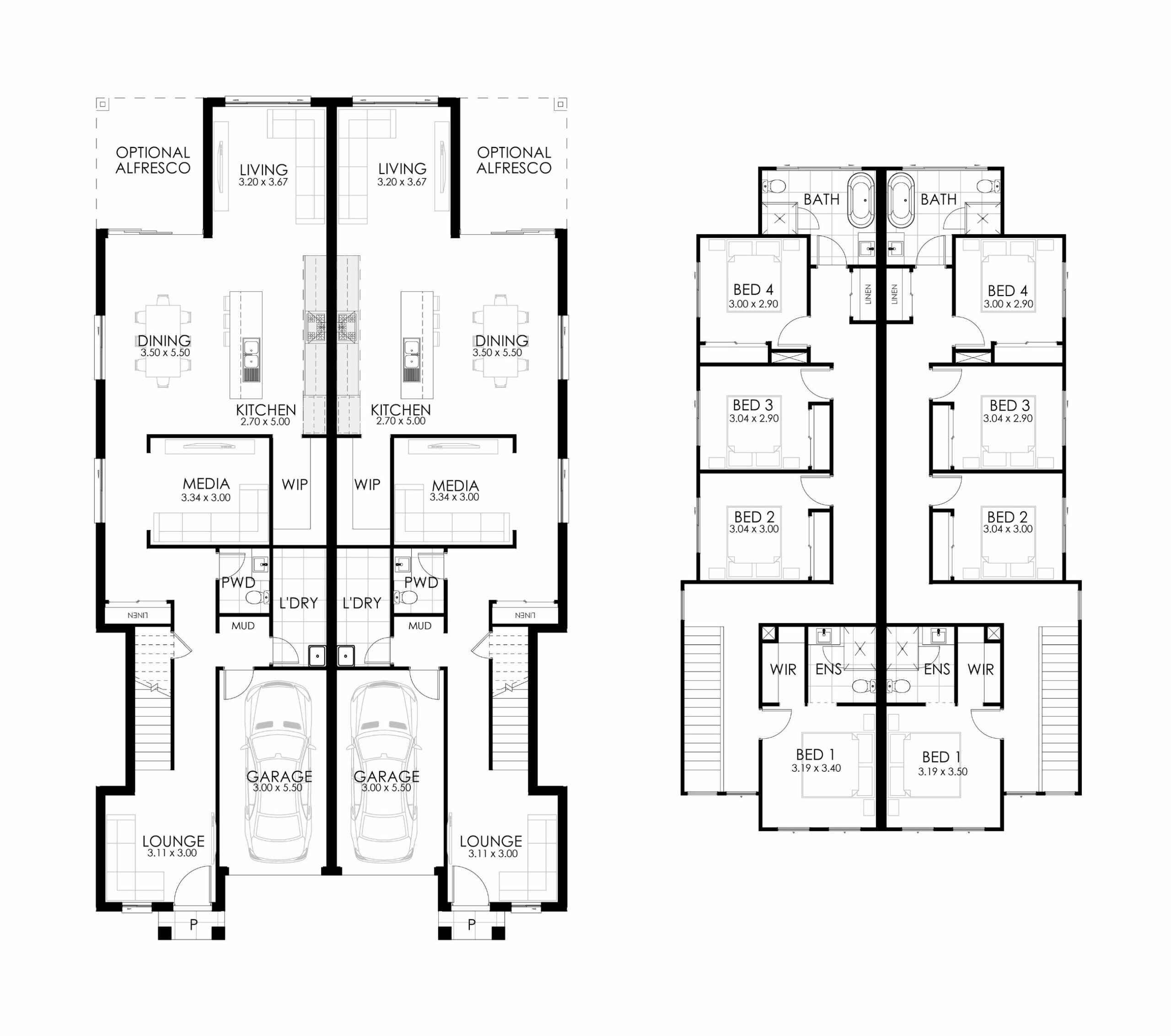
Upon entry, you’re greeted by a living area situated at the forefront, setting the tone for leisure and social gatherings. Venture further in, and the home unfolds into an expansive open-concept space encompassing the living, dining, and kitchen zones. The contemporary kitchen, boasting a walk-in pantry and plenty of storage.
The second floor offers four spacious bedrooms. The main suite, complete with a walk-in closet and ensuite, serves as a personal retreat. The remaining bedrooms revolve around a shared bathroom, optimising the flow and functionality of the space.
With the added bonus of a mudroom adjacent to the garage for added storage, the Hamilton design is adaptable and ideal for various lot dimensions, making it a top choice for investors.
















