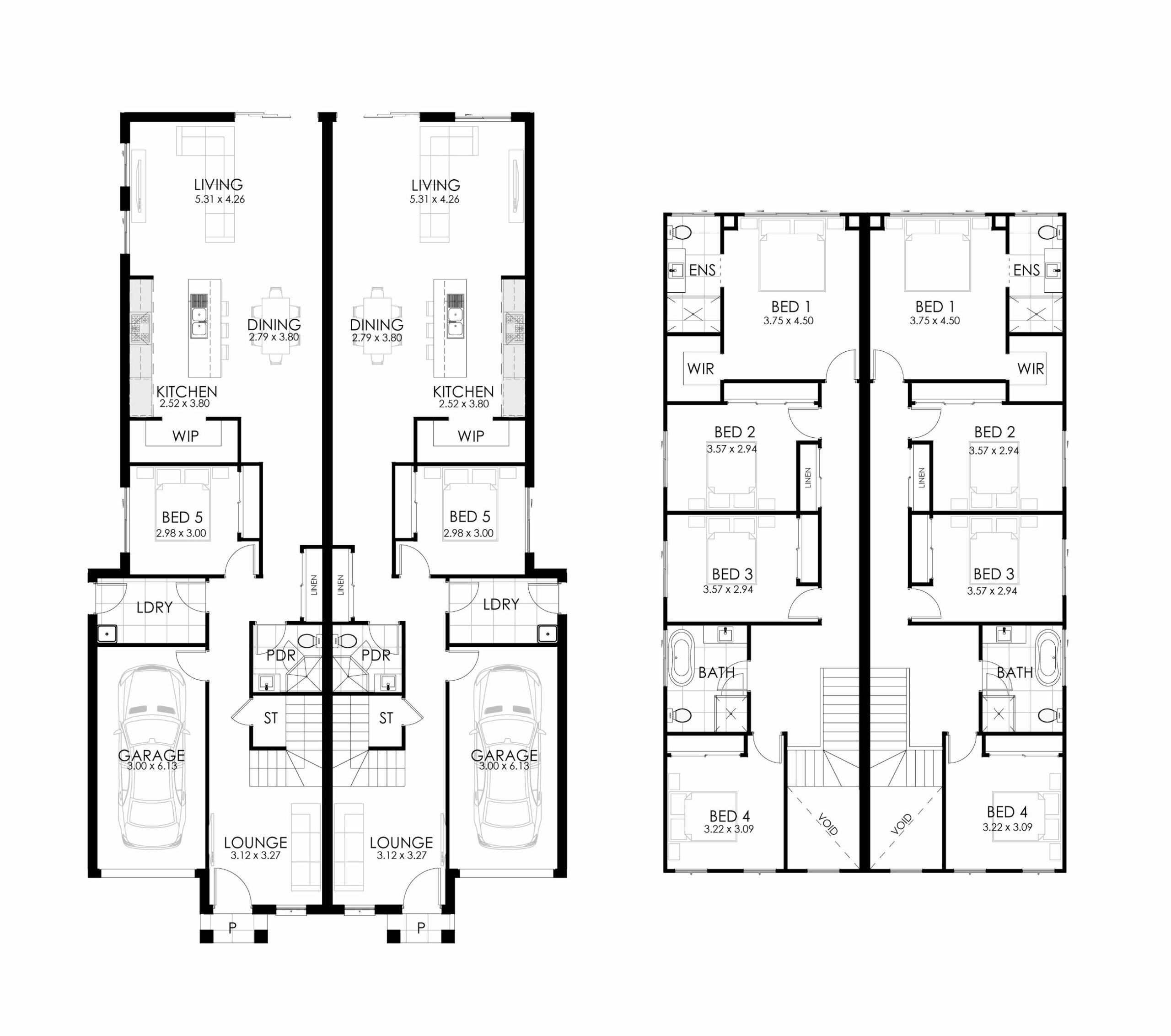
Welcome to the Hudson duplex home design, a brand new home by King Homes NSW that combines luxury, style, and functionality. This double-storey home is designed to provide comfortable living with premium features and finishes that are sure to impress.
As you enter the home, you are greeted by a striking feature void that creates a sense of grandeur and space. The ground floor features a spacious living room at the front of the home, offering the perfect space for relaxation and entertainment. The fifth bedroom downstairs is ideal for accommodating guests or extended family.
The rear of the home is designed for open plan living, with a spacious living, dining, and kitchen area. The modern and stylish kitchen features a walk-in pantry, and ample storage space, making it a chef’s dream.
Upstairs, you will find four generously sized bedrooms, including the main bedroom with a walk-in robe and ensuite, providing the ultimate private sanctuary. The other bedrooms share a central bathroom, creating a functional and convenient layout.
The Hudson duplex home design is a flexible and versatile option, perfect for investors and available to be built on a variety of block sizes.


















